Beschreibung
VAILLANT Multifunktionsspeicher allSTOR VPS 800/3-7
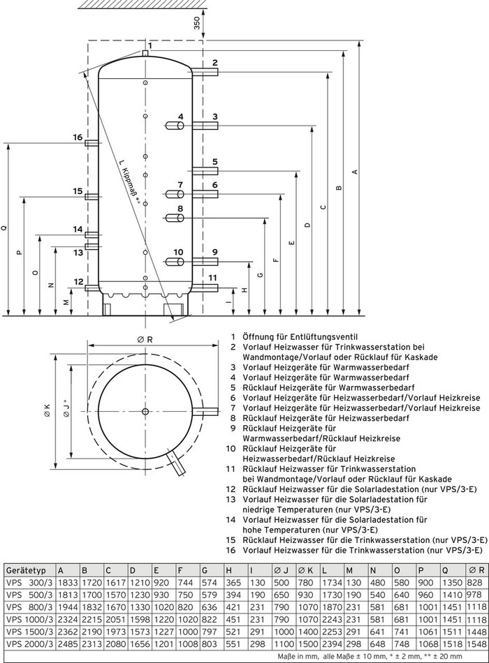
Die Abbildung zeigt den Pufferspeicher mit Trinkwasser- und Solarmodul (optionales Zubehör).
Produktvorteile:
Produktvorteile:
- Kompakter Puffer-Schichtladespeicher für die Kombination verschiedener Energiequellen wie Solar, Wärmepumpe, Holz, Öl, Gas, BHKW
- Hygienische Trinkwasserbereitung durch anflanschbare Trinkwasserstation
- Zusätzliche anflanschbare Solarstation für solare Warmwasserbereitung und Heizungsunterstützung
- Einfache Einbringung, Wärmedämmung ist nicht vormontiert
- Geteilte Wärmedämmung (bis 1000L 2-teilig, 1500L/2000L 3- teilig)
- Optional Wärmedämmkappen für ungenutzte Anschlüsse
- Unterfahrbarkeit ab 500 L mit Hubwagen
Ausstattung:
- Puffer-Schichtlade-Speicher aus Stahl
- Prallbleche und Leitwerke für optimale Einschichtung
- Hocheffiziente Wärmedämmung (140 mm bei 300-1000L, 200 mm bei 1500/2000L) aus Polyesterfaserflies
- Zirkulationspumpe als Zubehör
- 8 Anlegefühlerlaschen
- 15 Be- und Entladeanschlüsse für einzelne Speicherzonen
- 1 Muffe für Entlüftung
Lieferumfang:
- 1 allSTOR exclusiv VPS
- 1 Deckel
- 1 Wärmedämmung 2- teilig/3- teilig
- 4 Wärmedämmkappen
- 1 Kopf und Bodendämmung
- 2/3 Abdeckleisten
- 1 Handentlüfter
- 10 Rosetten
- 1 Installationsanleitung


Dokumente
Hersteller
Hersteller
Vaillant
Deutschland GmbH & Co. KG
Postanschrift:
Berghauser Str. 40
42859 Remscheid
Vaillant Infoline: 02191 - 57 67 920
Fax: 0 21 91-18 28 10
E-Mail: info@vaillant.de
https://www.vaillant.de/heizung/
Zubehöre
Vaillant
aguaFLOW exclusive VPM 20/25 W/2
Vaillant Frischwassermodul zur hygienischen Trinkwassererwärmung im Durchfluss
| Art.-Nr. | 0010014311 |
1.620,00 € *
Vaillant
auroFLOW exclusive VPM 20 S/2
Frischwassermodul zur Beladung von Puffer-Schichtenladespeichern
| Art.-Nr. | 0010014314 |
1.820,00 € *
Vaillant
3-Wege-Umschaltventil R1
Kvs=7,7cbm/h für Speicher allSTOR VPS
| Art.-Nr. | 0020036743 |
181,80 € *
Vaillant
Isolierkappen Speicheranschlüsse 2''
für ungenutzte Anschlüsse bei allSTOR exclusiv, allSTOR plus
| Art.-Nr. | 0010015142 |
46,30 € *
