Beschreibung
VAILLANT uniSTOR plus VIH R 120/6 B
Warmwasser-Speicher rund, stehend - Standard Wärmedämmung
Produkteigenschaften:
- indirekt beheizter, stehender Warmwasserspeicher
- Technik abgestimmt auf Gas-Wandheizgeräte und Heizkessel
- Alle Anschlüsse nach oben heraus geführt
- Ummantelung (weiss)
Ausstattung:
- Warmwasserspeicher mit hochwertiger Emaillierung
- Magnesium-Schutzanode
- Pulverbeschichtete Ummantelung (weiß)
- Hochwertige PU-Schaum Wärmedämmung
- Rohrwärmetauscher, innenliegend
- Entleerungsventil
- Schwerkraftbremse
- Zirkulationsanschluss
- Einstellbare Schraubfüße
Bei einem indirekt beheizten Warmwasserspeichersystem wird kaltes Trinkwasser erwärmt und bis zur Entnahme bevorratet. Dazu hat der Warmwasserspeicher einen Speicherbehälter mit integriertem Wärmetauscher. Der Wärmetauscher eines Warmwasserspeichers ist stets im unteren Bereich des Speicherbehälters angeordnet, damit nach dem Schwerkraftprinzip das erwärmte, infolge des Dichteunterschieds „leichte“ Trinkwasser von allein zum Warmwasser-Zapfstutzen aufsteigen und sich danach gleichmäßig im gesamten Speicherbehälter verteilen kann.
Das Speichersystem kann mit einer relativ kleinen Heizleistung große Warmwassermengen für den Spitzenbedarf erzeugen und bevorraten. Unabhängig von der installierten Kesselleistung steht der gesamte Warmwasservorrat des Warmwasserspeichers verzögerungsfrei zur Verfügung und kann in großer Menge gezapft werden. Nach dem Verbrauch eines Teils des gespeicherten Warmwassers kann der Warmwasserspeicher nur noch die Warmwassermenge liefern, die der Warmwasser-Dauerleistung seines eingebauten Wärmetauschers entspricht. Beim Dauerleistungsbetrieb wird das einströmende Kaltwasser im Gegenstromprinzip mit der vollen Beheizungsleistung erwärmt.
Technische Daten:
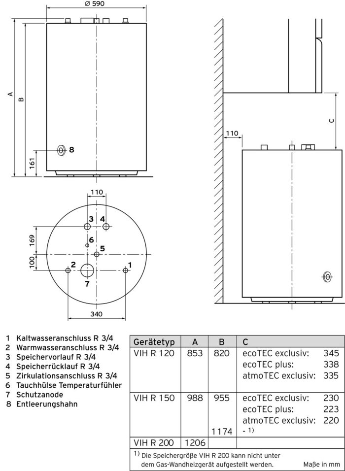
Speicherinhalt 117 l
Heizungswasserinhalt 4,8 l
zul. Betriebsüberdruck 10 bar
Heizwassertemperatur max. 110 Grd.C
Warmwassertemperatur max. 85 Grd.C
WW-Dauerleistung max. 527 l/h (21,7 kW)
Leistungskennzahl NL max. 1,4
Bereitschaftswärmeverlust 1,1 kWh
Vor-/Rücklaufanschluss R 1
Kalt-/Warmwasseranschluss R 3/4
Zirkulationanschluss R 3/4
Höhe/Durchmesser 853/590 mm
Gewicht 68 kg
Jahreszeitbedingte Warmwasserbereitungs-Energieeffizienzklasse B (Spektrum A+ bis F)
Bestell-Nr. 0010016414
VAILLANT uniSTOR plus VIH R 120/6 B
Dokumente
Merkmale
| Energieeffizienz Speicher | B |
| Speicherinhalt | 117 Liter |
| Wärmedämmung | standard PUR-Hartschaum |
Hersteller
Hersteller
Vaillant
Deutschland GmbH & Co. KG
Postanschrift:
Berghauser Str. 40
42859 Remscheid
Vaillant Infoline: 02191 - 57 67 920
Fax: 0 21 91-18 28 10
E-Mail: info@vaillant.de
https://www.vaillant.de/heizung/
Zubehöre
Speicher-Verrohrungssatz 120 Liter, Aufputz
| Art.-Nr. | 0020183758 |
Speicher-Verrohrungssatz 120 Liter, Unterputz
| Art.-Nr. | 0020183759 |
Zirkulationspumpenset 120-200 L Aufputz
| Art.-Nr. | 0020152970 |
Zirkulationspumpenset 120-200 L Unterputz
| Art.-Nr. | 0020171469 |
Sicherheitsgruppe R 1/2
| Art.-Nr. | 0020060434 |
Speicherfühler
| Art.-Nr. | 306257 |
Universal Fremdstromanode M8 mit 3/4'' Adapter
| Art.-Nr. | 302042 |
