Vaillant atmoMAG 144/1 I Warmwasser-Geyser
Besondere Eigenschaften
- Warmwasser-Geyser mit Batteriezündung
- OPTI-MOD-Funktion (Geräteleistung zwischen 40% und 100% der Nennwärmeleistung bedarfsabhängig wählbar)
- Temperaturwähler
- Anspringwassermenge 2,2 Liter bzw. 3,2 Liter
- Dezentrale und gruppenweise Versorgung
- Direkt- oder Fernzapfung
- Thermostat-Mischbatterien und Einhebelmischer einsetzbar
Produktausstattung
- Elektronische Zünd- und Überwachungseinrichtung
- Abgassensor serienmäßig
- Wassermengenregler
- Strömungssicherung eingebaut
- Batterien (2 Monozellen, 1,5 Volt)
Lieferumfang
1 atmoMAG MAG I
1 Befestigungsmaterial
2 Batterien (Monozellen 1,5 V, Typ LR20)
1 Betriebs- und Installationsanleitung
1 Gasanschlussrohr, Dichtungen
Technische Angaben:
Gasart Erdgas E
Heizleistung 8,4-19,2 kW
Warmwasserleistung 50K, max. 7,0 l/min
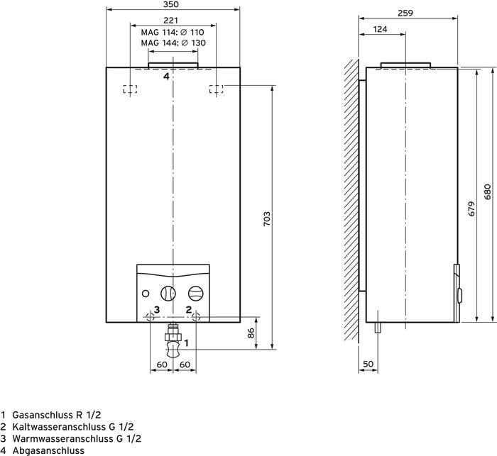
Kalt-/Warmwasseranschluss R 1/2
Gasanschluss R 1/2
Abgasanschluss 130 mm
Höhe/Breite/Tiefe 680/350/259 mm
Gewicht 11,5 kg
DVGW-Produkt-ID-Nr. CE-1008CP2793
Warmwasserbereitungs-Energieeffizienzklasse A
(Spektrum A+ bis F)
Bestell-Nr. 0010022558