Gasbrennwertkessel WTC-GB 150-B H-O (WEM-Regelung)
- Großer Modulationsbereich 19,4 bis 147,6 kW
- Elektronische Verbrennungsregelung (Scot)
- Geringer Druckverlust erlaubt einfache Hydrauliken
- Große Reinigungsöffnungen
- Integrierte Internet-Schnittstelle
- Verbrauchskontrolle durch integrierten Wärmemengenzähler
- Bodenstehendes Gas-Brennwertgerät für geschlossene Heizungsanlagen nach EN 12828.
- Zugelassen für Erdgas E, LL und Flüssiggas P, für raumluftabhängigen und -unabhängigen Betrieb.
- Weishaupt Gasbrennwertsysteme sind für einen Wasserstoffanteil im Erdgas von bis zu 20 Volumenprozent durch den DVGW zertifiziert.
- Kesselkörper aus hochwertigem Aluminium-Silizium-Sandguss.
- Die großzügig dimensionierte Wärmetauscherfläche gewährleistet niedrige Abgastemperaturen und höchste Wirkungsgrade.
- Große Revisionsöffnungen ermöglichen eine wirkungsvolle Reinigung der Heizflächen.
Weitere Komponenten:
- analoger Manometer und digitaler Druckaufnehmer
- Luftsammeltopf mit automatischem Entlüfter
- Ultraschall-Volumenstromsensor
Geräuscharmer modulierender Premix-Flächenbrenner für niedrige CO- und NOx-Emissionen. Die elektronische Verbrennungsregelung System Scot sorgt kontinuierlich für optimale Verbrennung mit höchstem Wirkungsgrad und niedrigen Emissionen und bietet zusätzliche Vorteile:
- Einfache Inbetriebnahme
- Ausregelung von Gas-Qualitäts- und Druckschwankungen
- Automatische Erkennung verschiedener Erdgasarten
- Einfache Umstellung auf Flüssiggas ohne Umbauteile
Modulares Regelsystem WEM zur Regelung eines witterungs- und raumtemperaturgeführten Pumpenheizkreises und eines Trinkwasserspeichers.
Systemregler WEM-SG mit
- intuitiver Menüführung über Symbolik (Icon) und Klartext durch Drehen und Drücken
- Inbetriebnahme-Assistent mit Hydraulikauswahl
- frei belegbares Favoritenmenü
- Grafikfarbdisplay
- Wärmemengenanzeige
- Speicher-Einmalladung (Warmwasser-Push)
- Antilegionellenfunktion
- integrierte LAN-Schnittstelle zur Anbindung an das WEM-Portal. Über das WEM-Portal kann nach Entrichtung einer Nutzungsgebühr per App oder PC auf das Heizsystem zugegriffen werden (Ferneinstellung, Datenaufzeichnung, Störmeldungen, etc.)
- Ein multifunktionaler Ausgang zur wahlweisen Ansteuerung von externen Pumpen (für Heizung, Speicherladung, oder Warmwasser-Zirkulation), eines externen Gasventils oder als Stör- oder Betriebsmeldeausgang nutzbar.
- Zwei Eingangskontakte zur optionalen Nutzung als Sperrkontakt für Heizbetrieb, Warmwasserbetrieb oder Wärmeerzeuger.
- integriertes Einsteckmodul mit zwei Schaltausgängen, PWM-Ausgang, zwei Fühlereingängen, 0-10 Volt-Eingang zur Kesselführung über externe Wärmeanforderung
- Temperatur- und Volumenstromregelung einer hydraulischen Weiche / Systemtrennung zur Vermeidung von Rücklaufanhebung.
- Einzelzugentlastung für sämtliche Kabel externer Komponenten. Abschirmblech an sämtlichen Kleinspannungsleitungen.
- CAN-Bus-Schnittstelle zur Kommunikation mit weiteren WEM-Regelkomponenten. Das System kann auf bis zu 12 Brennwertgeräte, 24 Erweiterungsmodule Heizkreis oder Warmwasser mit jeweils bis zu 3 Raumfühlern erweitert werden.
Anforderungen an die Heizwasserqualität VDI 2035 oder vergleichbarer nationaler und/oder regionaler Vorschriften sind zu erfüllen.
Zum witterungsgeführten Betrieb ist der Einsatz der Fernbedien-Station WCM-FS 2.0, und eines Außenfühlers erforderlich (Zubehör).
Der bodenstehende Gas-Brennwertkessel WTC-GB 120 … 300 ist zwingend mit dem Abgas-Kesselanschluss-Set Bogen oder Gerade zu installieren (Zubehör).
Technische Daten:
Feuerungswärmeleistung: 19,4 – 146 kW
Nennleistung modulierend (Tv/Tr 50/30 Grad C) 20,8 – 147,6 kW
Nennleistung modulierend (Tv/Tr 80/60 Grad C) 18,9 – 140,5 kW
Kesselwirkungsgrad (Hi) Eta_100 bei 80/60 Grad C: 98,1 % (88,3 % Hs)
Kesselwirkungsgrad (Hi) Eta_30 bei 30 Grad C Rücklauftemperatur: 108,6 % (97,7 % Hs)
max. zulässiger Betriebsdruck: 6 bar
Gewicht: 169 kg
Wasserinhalt: 16 Liter
Max. Volumenstrom: 10.800 l/h
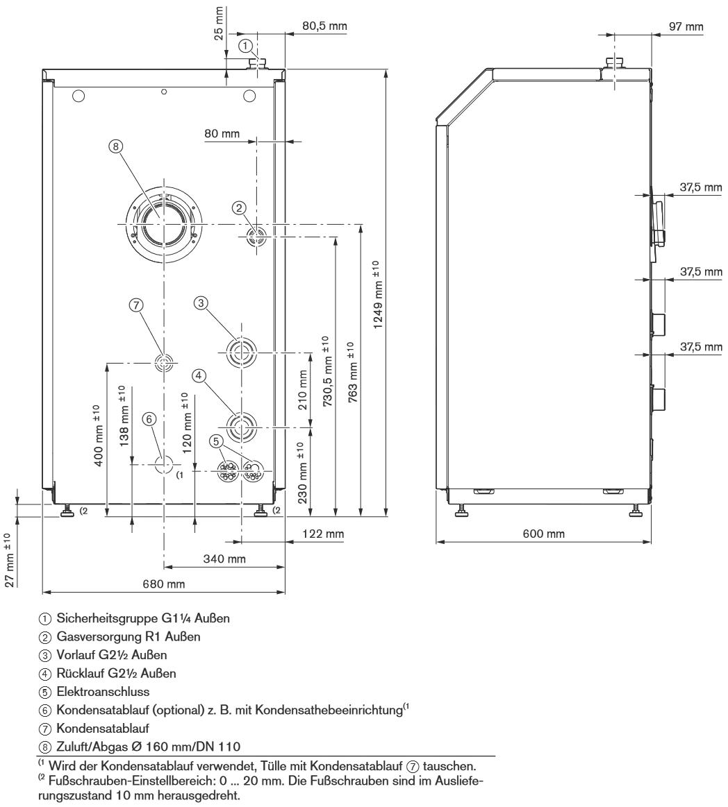
Geräteabmessungen Breite / Höhe / Tiefe in mm: 680 / 1249 / 600
Zuluft-/Abgas-Anschluss: DN 160/110
Energieeffizienzkennzeichnung:
JahreszeitbedingteRaumheizungs-Energieeffizienz: 93 %
Wärmenennleistung: 140 kW
Schallleistungspegel Lwa: 59 dB
Dokumente